Property Details
Basic Information
- Status: Active
- Stellar: D6143245
- Date Listed: 07/30/2025
Building
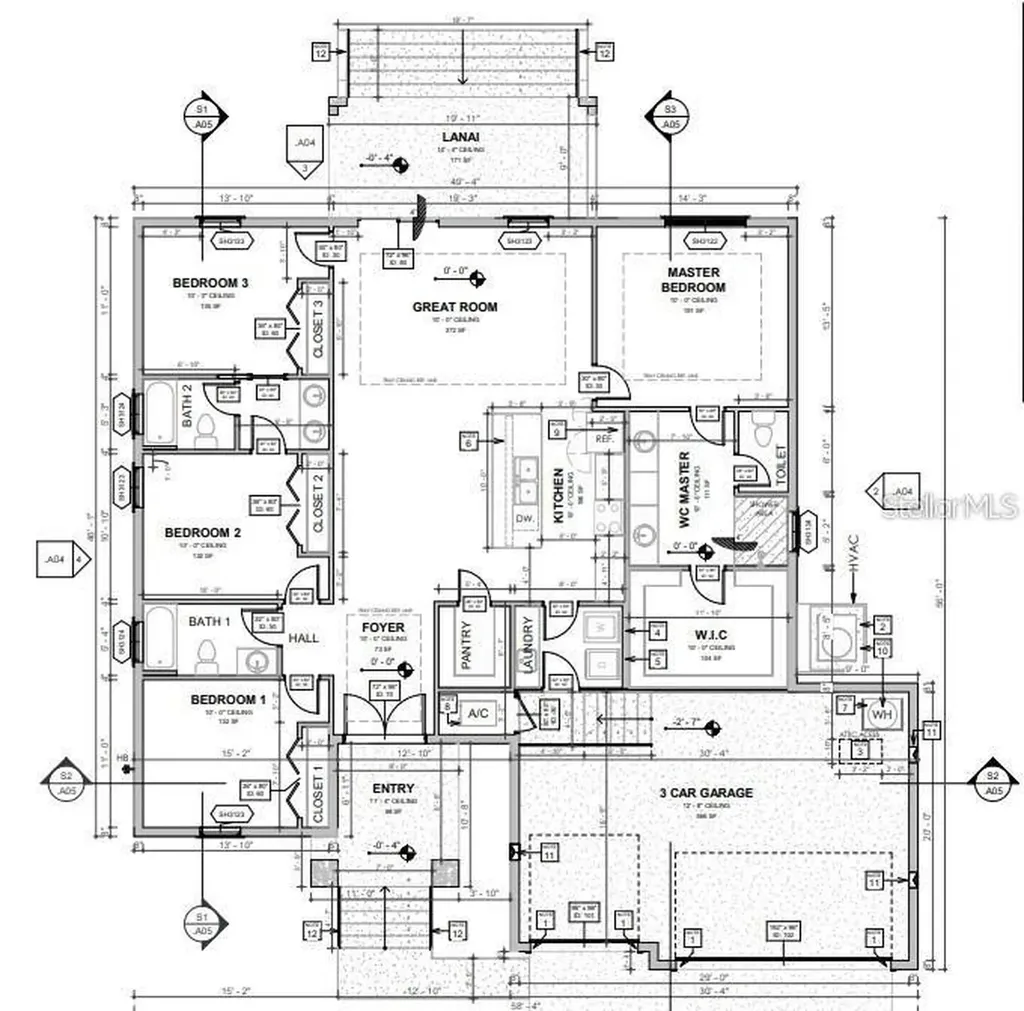
- Square Feet: 1,888
- Year Built: 2025
- Zoning: RSF3.5
- Rooms: 4
- Roof: Shingle
- Garage Spaces: 3
Location
- Town: Punta Gorda
- County: Charlotte
- State: FL
- Zip: 33955
Finance
- Total Monthly Fees: $36
- Taxes: $933
Water
- Water View: No
Buyer Agency Compensation
- Buyer Agency Compensation: 3%
Interior Features
Bedrooms
- Bedrooms: 4
Bathrooms
- Bathrooms: 3
- Full Baths: 3
Laundry
- Laundry Features: Inside, Laundry Room
Utilities and Appliances
Utilities and Appliances
- Appliances Included: Dishwasher, Microwave, Range, Refrigerator
Community
Schools
- Elementary School: Sallie Jones Elementary
- Junior High: Punta Gorda Middle
- High School: Charlotte High
Amenities
- Pets: Yes
Area
- Subdivision: Punta Gorda Isles Sec 21

















